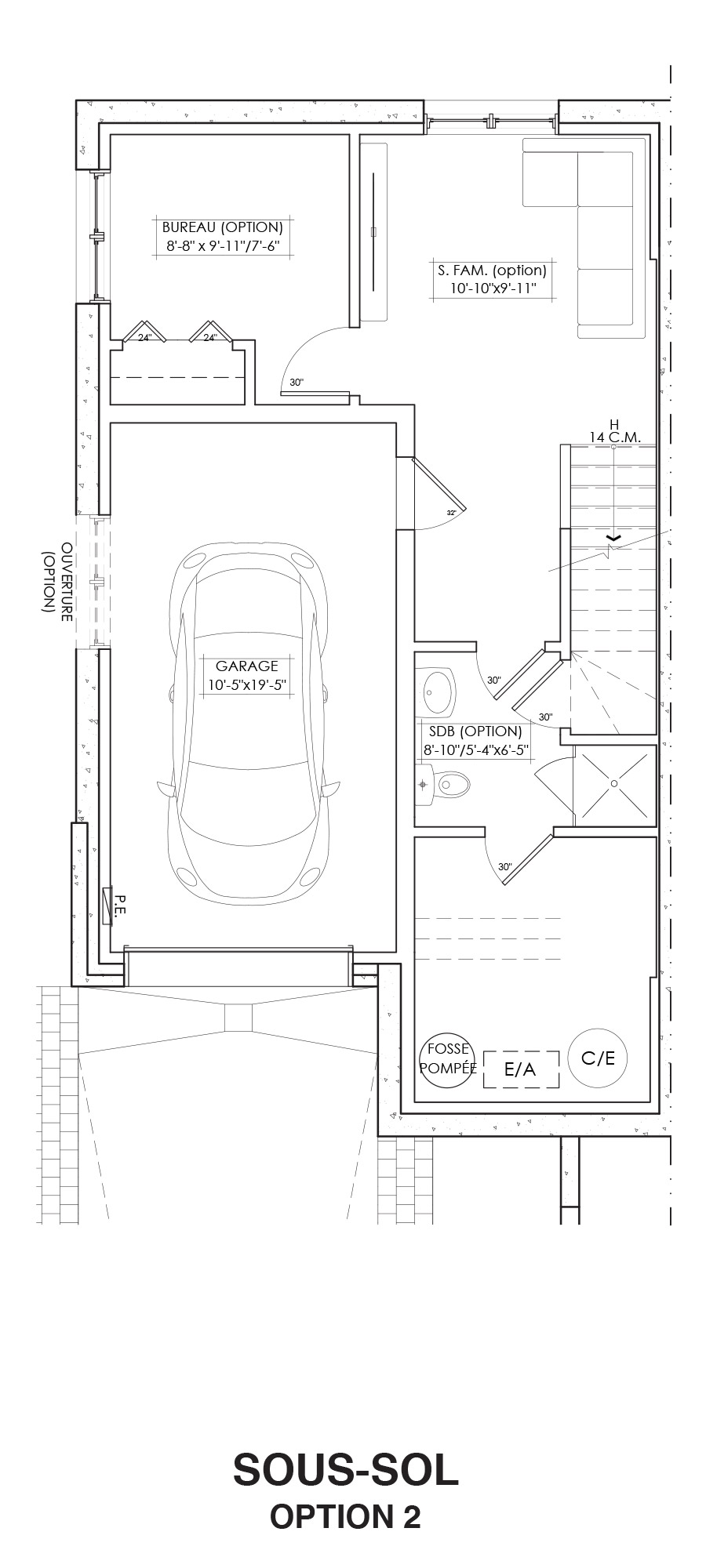
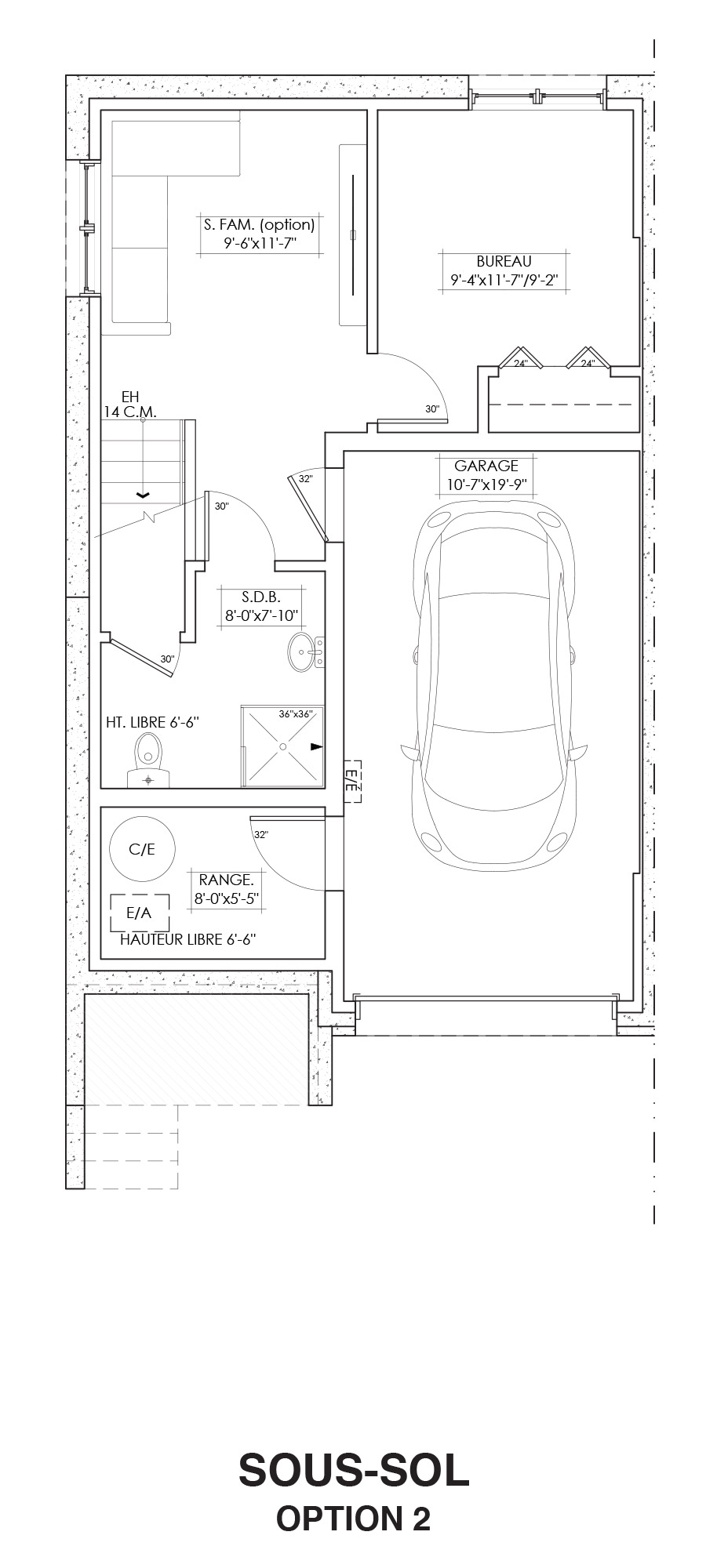
Our two models of attached homes
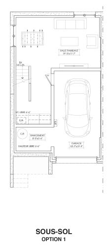
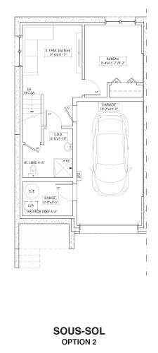
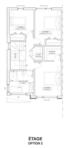
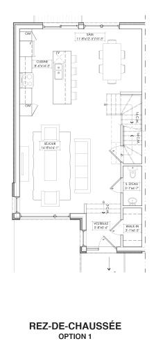
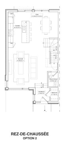
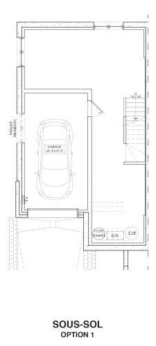
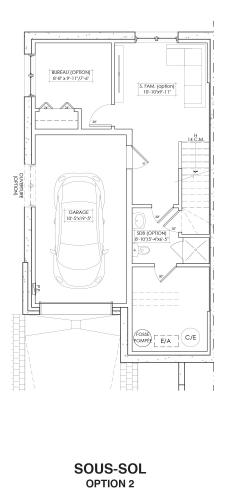
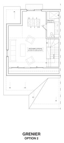
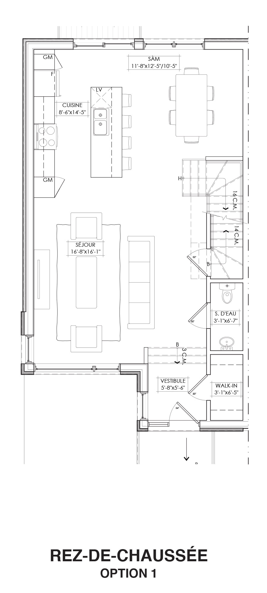
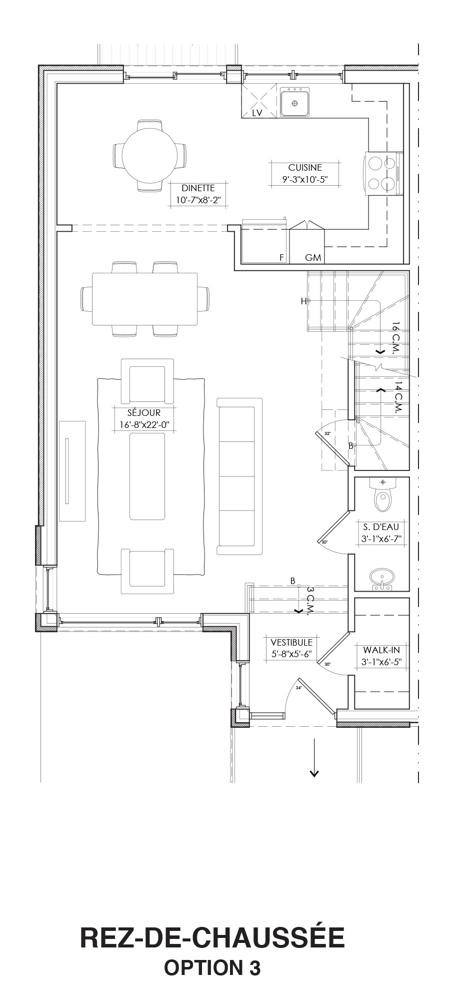
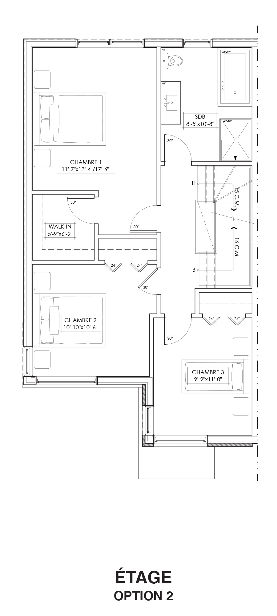
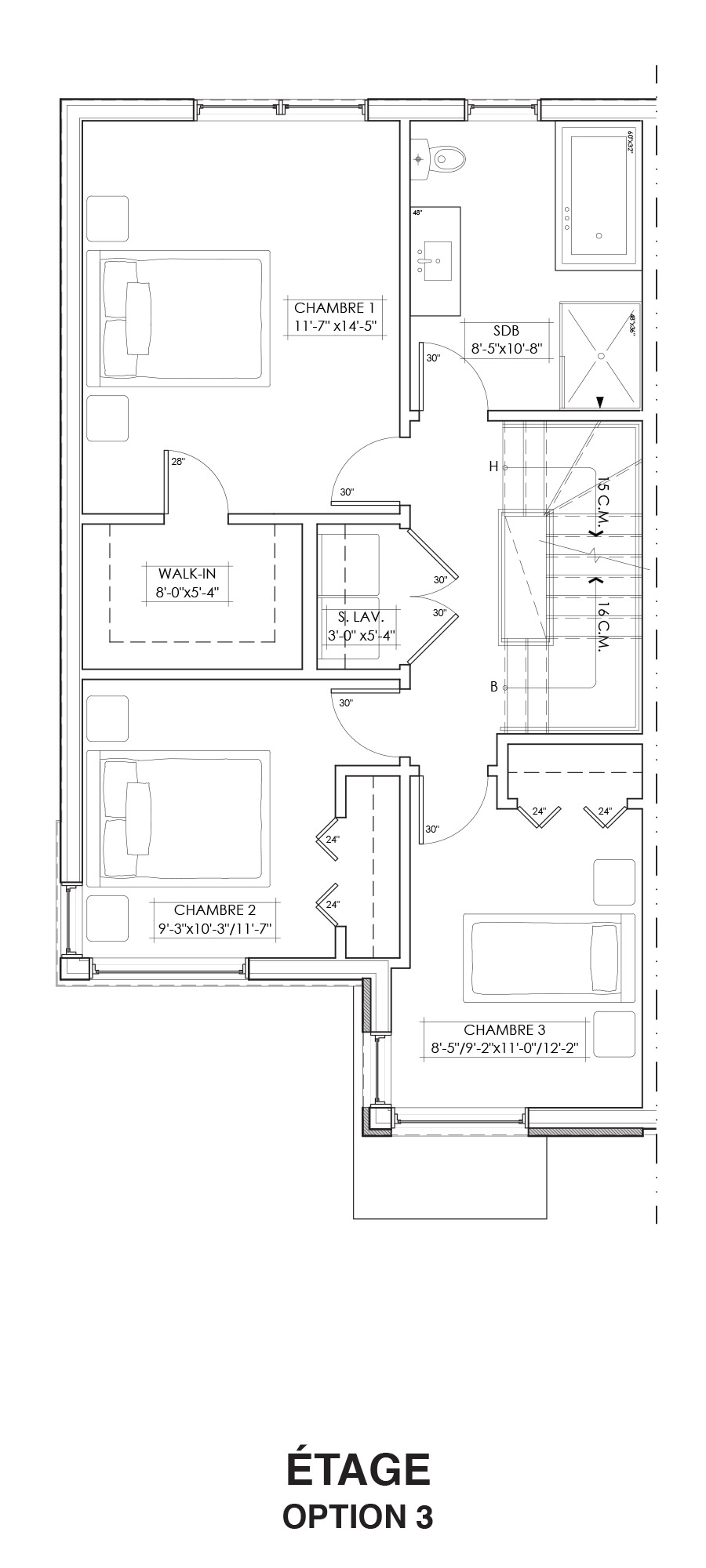
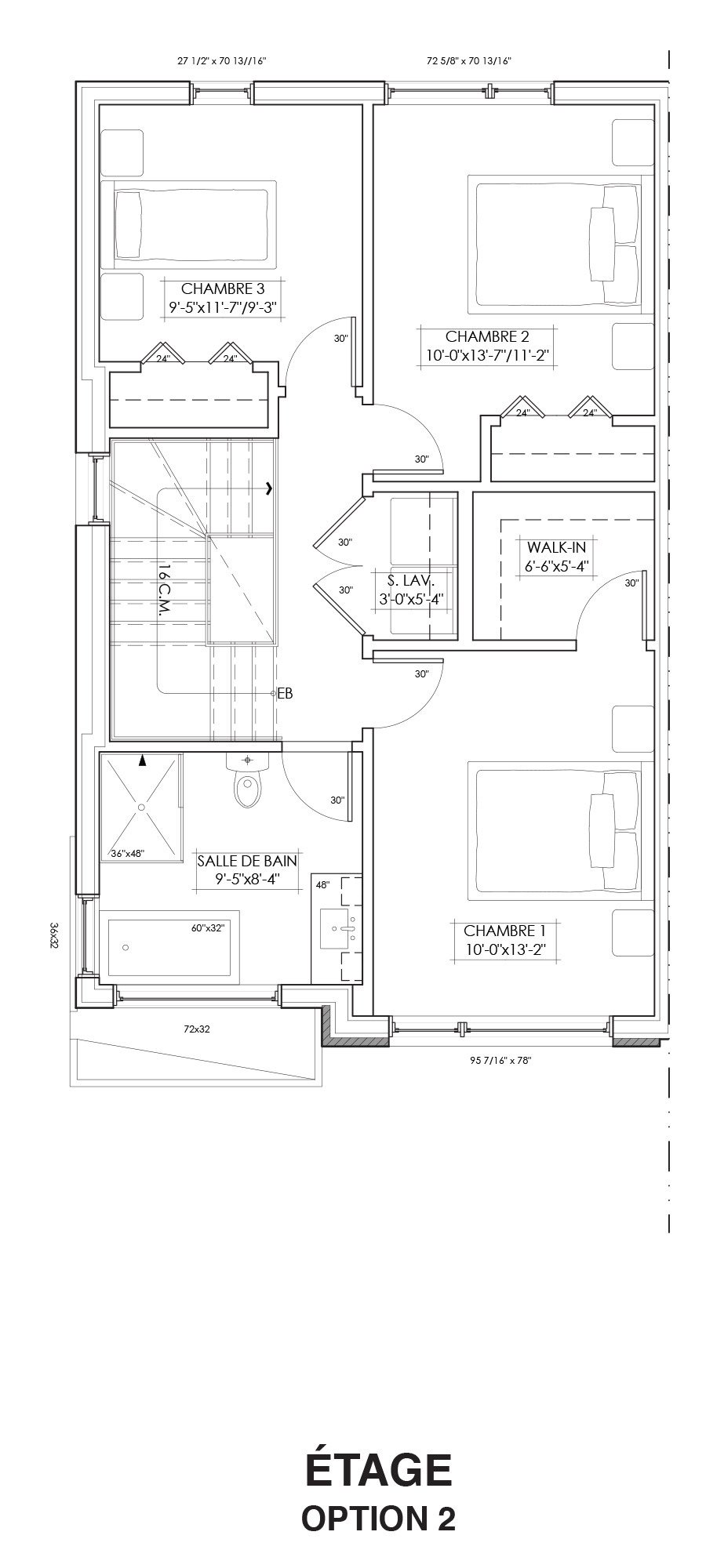
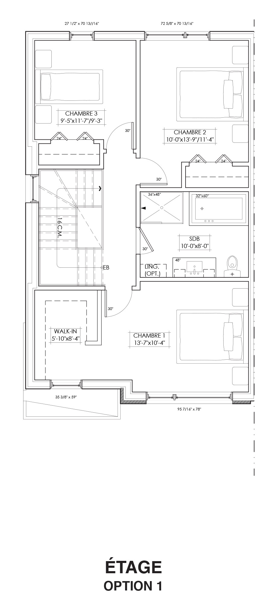
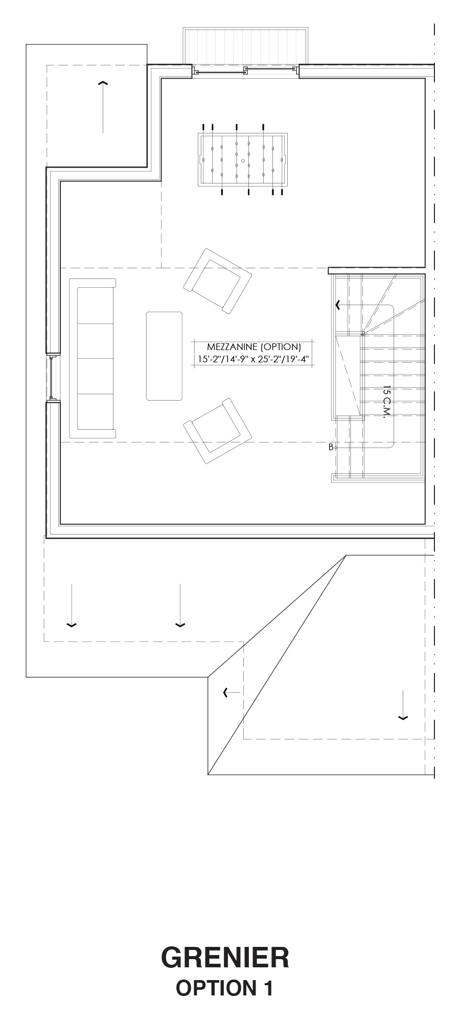
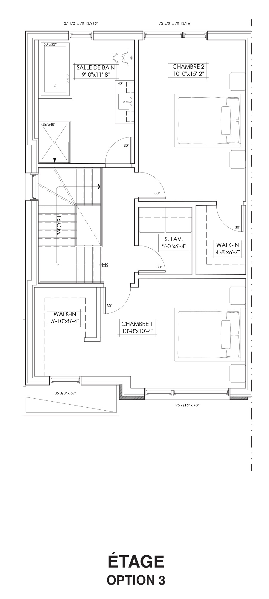
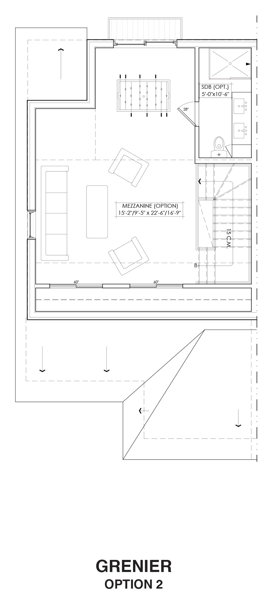
Multiple facade and interior configuration options
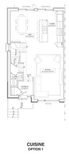
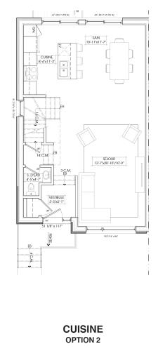
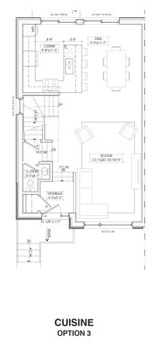
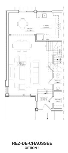
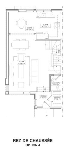
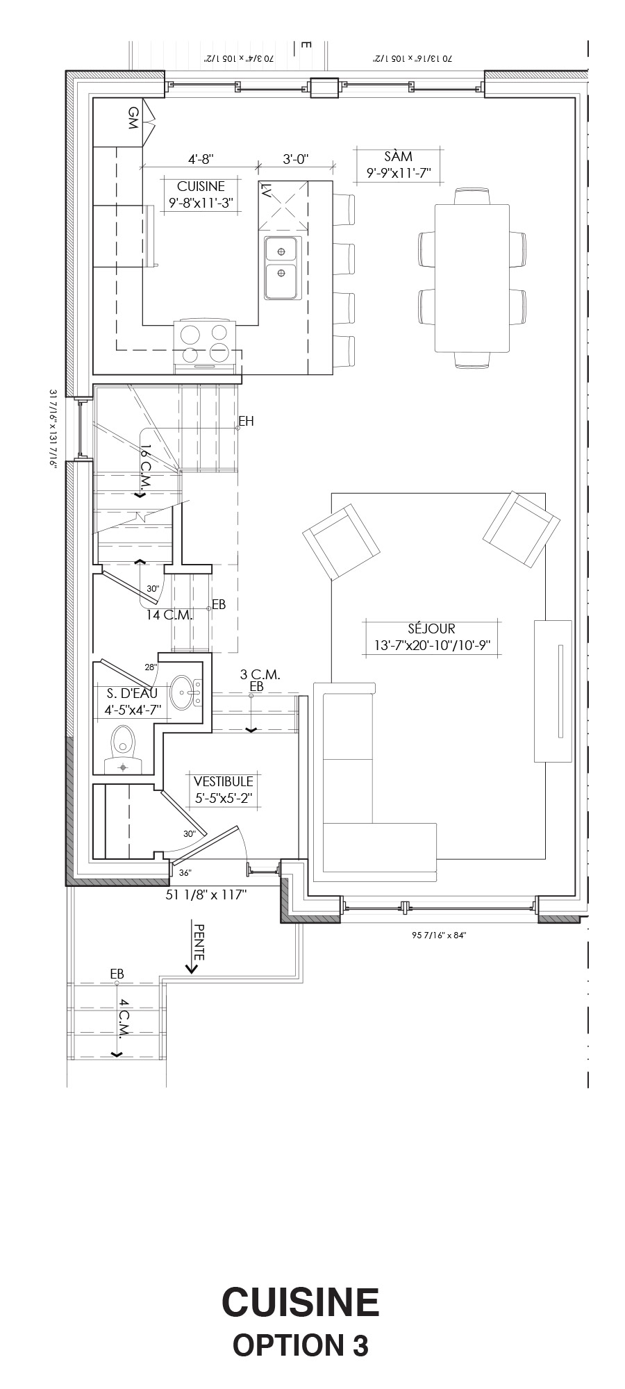
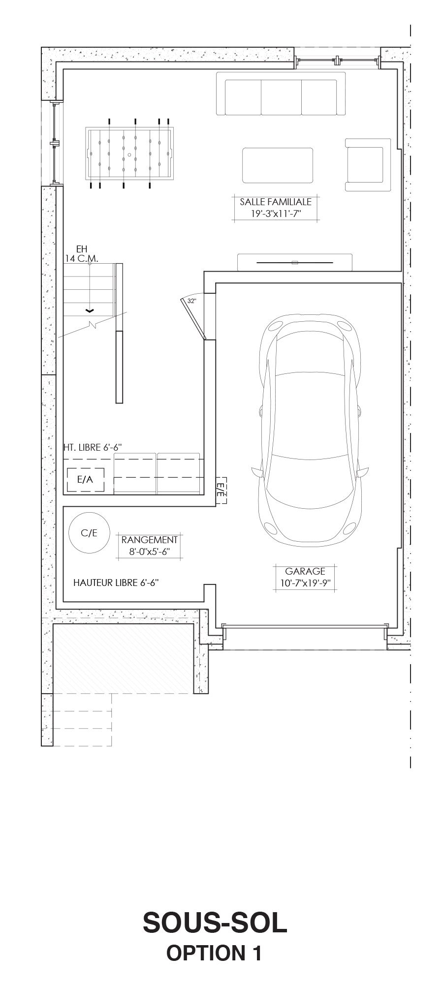
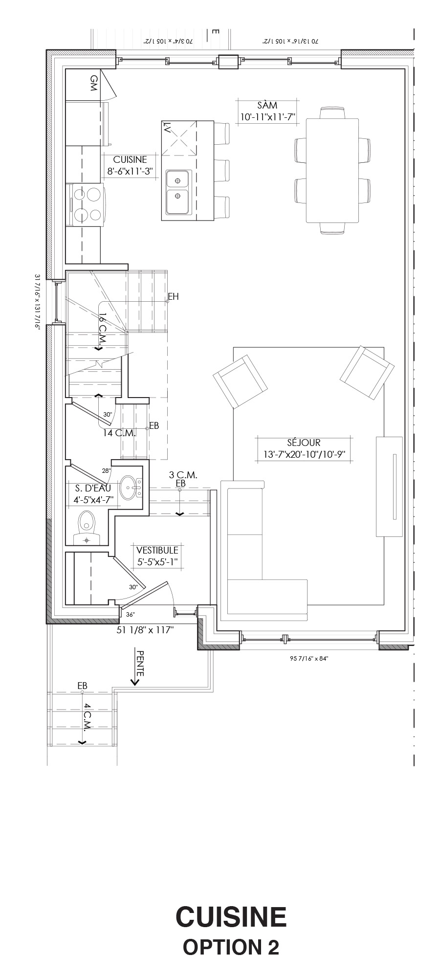
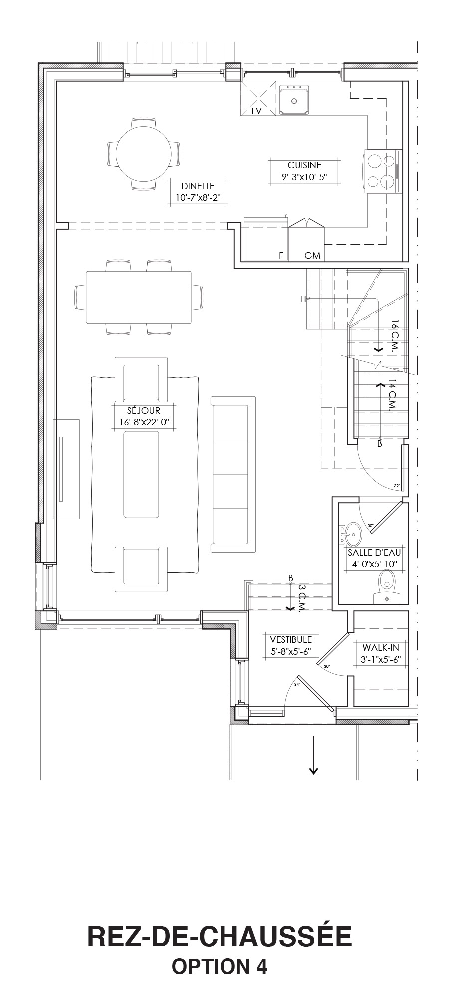
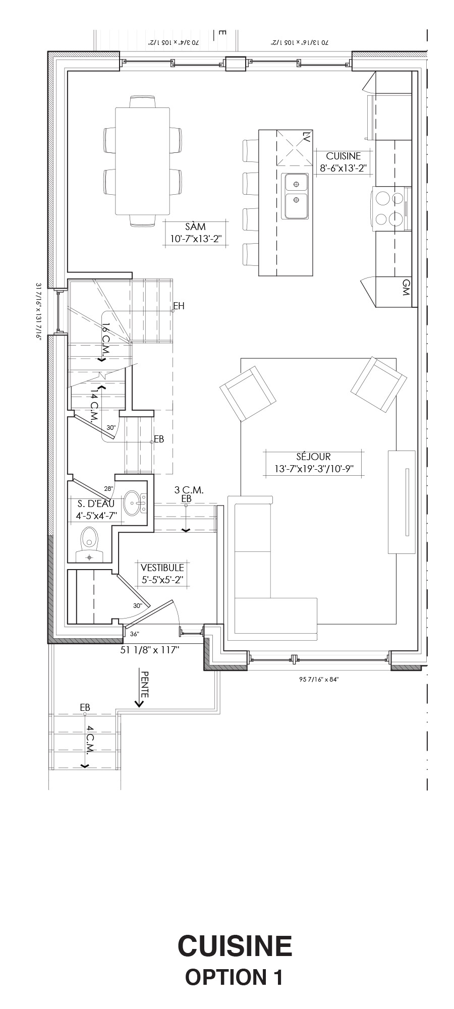
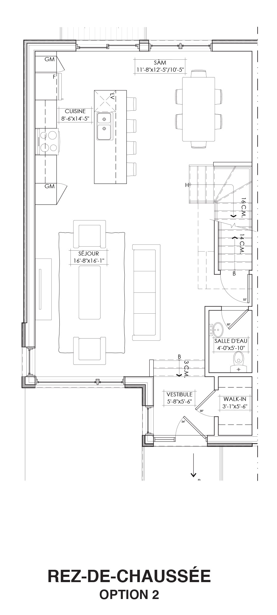
Open ground floor concept, bright and spacious
Wide variety of high-quality interior finishes
Peaceful neighbourhood with generous green spaces
Visit our two model homes in Saint-Constant and fall in love with the neighbourhoods' many charms















































